

| 產品名稱 | 廣式法蘭球閥 |
| 產品型號 | |
| 公稱通徑 | DN15-200 |
| 壓力范圍 | 1.6-32MPa |
| 閥體材質 | 鑄鋼丨不銹鋼(304L/R、316L/R) |
廣式法蘭球閥:
廣式法蘭球閥體積小、安裝方便的特點,又具有國標法蘭全通徑不易泄漏的優點,一舉改變了以往方式法蘭球閥流量小,易泄漏的固疾,也解決了國標法蘭球閥過于笨重的缺點,而具閥體可采用精鑄造工藝,外形美觀大方。全通徑、大徑量,連接尺寸符合廣式法蘭球閥標準,預計將在越來越多的管道上得到廣泛的使用。
詳細說明:
宇澤閥門公司是一家開發、設計、銷售閥門的高新技術企業,已有多年的歷史,經驗豐富、技術力量雄厚、設備精良、質量管理嚴密,所生產的產品造型新穎,結構合理,一律采用國際標準生產,質量可靠,價格合理,深受廣大用戶的信賴和好評。
廣式法蘭球閥是用帶有圓形通道的球體作啟閉件,球體隨閥桿轉動實現啟閉動 作的閥門。球閥的啟閉件是一個有孔的球體,繞垂直于通道的軸線旋轉,從而達到啟閉通道的目的。主要用于截斷或接通管道和設備介質,也可用于流體的調節與控制,球閥流體阻力小,結構簡單,體積小, 重量輕,緊密可靠,操作維修方便,不會引起閥門密封面的侵蝕,適用范圍廣。
★廣式法蘭球閥產品特點:
1、廣式球閥體積小、安裝方便的特點,又具有國標法蘭全通徑不易泄漏的優點,一舉改變了以往方式法蘭球閥流量小,易泄漏的固疾,也解決了國標法蘭球閥過于笨重的缺點,
2、閥體可采用精鑄造工藝,外形美觀大方。
3、全通徑、大徑量,連接尺寸符合廣式法蘭球閥標準,預計將在越來越多的管道上得到廣泛的使用。
★廣式法蘭球閥主要零件材料
|
適用介質 |
型號 |
閥體 |
球體、閥桿 |
手柄 |
密封圈 |
墊片、填料 |
|
水、蒸汽、油品 |
Q41F-16C、Q41F-25C |
A105、45 |
1Cr18/1Cr18Ni9Ti |
不 |
聚四氟乙烯PTFE增強聚四氟乙烯VUILUK PTFE對位聚苯PPL |
聚四氟乙烯PTFE對位聚苯PPL |
|
硝酸類 |
Q41F-16P、Q41F-25P |
SS304/1Cr18Ni19Ti |
SS304/1Cr18Ni9Ti |
|||
|
醋酸類 |
Q41F-16R、Q41F-25R |
SS316/Cr18Ni12Mo2Ti |
SS316/1Cr18Ni12Mo2Ti |
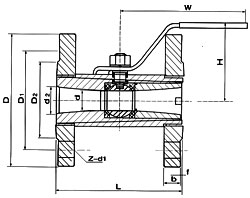
★廣式法蘭球閥主要尺寸
|
公稱通徑 |
d |
d2 |
L |
D |
D1 |
D2 |
b |
f |
Z-d1 |
H |
W |
|
|
DNmm |
in |
|||||||||||
|
15 |
1/2 |
10 |
15 |
92 |
95 |
65 |
45 |
14 |
2 |
4-14 |
60 |
110 |
|
20 |
3/8″ |
12.6 |
20 |
106 |
75 |
105 |
55 |
14 |
2 |
4-14 |
65 |
110 |
|
25 |
1″ |
17 |
24 |
109 |
85 |
115 |
65 |
16 |
2 |
4-14 |
70 |
110 |
|
32 |
1 1/4″ |
22 |
32 |
126 |
100 |
135 |
78 |
16 |
2 |
4-18 |
85 |
145 |
|
40 |
1 1/2″ |
25 |
38 |
136 |
110 |
145 |
85 |
16 |
3 |
4-18 |
90 |
145 |
|
50 |
2″ |
32 |
46 |
154 |
125 |
160 |
100 |
18 |
3 |
4-18 |
98 |
177 |
|
65 |
2 1/2″ |
44 |
60 |
170 |
145 |
180 |
120 |
20 |
3 |
8-18 |
110 |
190 |
|
80 |
3″ |
50 |
72 |
195 |
160 |
195 |
135 |
22 |
3 |
8-18 |
130 |
240 |
|
100 |
4″ |
65 |
92 |
215 |
180 |
215 |
155 |
22 |
3 |
8-18 |
150 |
260 |
浙江宇澤閥門有限公司專注于球閥,為用戶提供廣式法蘭球閥選型、設計、非標訂制,常規廣式法蘭球閥咨詢,我們可提供廣式法蘭球閥相關標準、圖紙、參數、使用說明及原理介紹,方便用戶根據實際需求做出合理的選型。
廣式法蘭球閥:
廣式法蘭球閥體積小、安裝方便的特點,又具有國標法蘭全通徑不易泄漏的優點,一舉改變了以往方式法蘭球閥流量小,易泄漏的固疾,也解決了國標法蘭球閥過于笨重的缺點,而具閥體可采用精鑄造工藝,外形美觀大方。全通徑、大徑量,連接尺寸符合廣式法蘭球閥標準,預計將在越來越多的管道上得到廣泛的使用。
詳細說明:
宇澤閥門公司是一家開發、設計、銷售閥門的高新技術企業,已有多年的歷史,經驗豐富、技術力量雄厚、設備精良、質量管理嚴密,所生產的產品造型新穎,結構合理,一律采用國際標準生產,質量可靠,價格合理,深受廣大用戶的信賴和好評。
廣式法蘭球閥是用帶有圓形通道的球體作啟閉件,球體隨閥桿轉動實現啟閉動 作的閥門。球閥的啟閉件是一個有孔的球體,繞垂直于通道的軸線旋轉,從而達到啟閉通道的目的。主要用于截斷或接通管道和設備介質,也可用于流體的調節與控制,球閥流體阻力小,結構簡單,體積小, 重量輕,緊密可靠,操作維修方便,不會引起閥門密封面的侵蝕,適用范圍廣。
★廣式法蘭球閥產品特點:
1、廣式球閥體積小、安裝方便的特點,又具有國標法蘭全通徑不易泄漏的優點,一舉改變了以往方式法蘭球閥流量小,易泄漏的固疾,也解決了國標法蘭球閥過于笨重的缺點,
2、閥體可采用精鑄造工藝,外形美觀大方。
3、全通徑、大徑量,連接尺寸符合廣式法蘭球閥標準,預計將在越來越多的管道上得到廣泛的使用。
★廣式法蘭球閥主要零件材料
|
適用介質 |
型號 |
閥體 |
球體、閥桿 |
手柄 |
密封圈 |
墊片、填料 |
|
水、蒸汽、油品 |
Q41F-16C、Q41F-25C |
A105、45 |
1Cr18/1Cr18Ni9Ti |
不 |
聚四氟乙烯PTFE增強聚四氟乙烯VUILUK PTFE對位聚苯PPL |
聚四氟乙烯PTFE對位聚苯PPL |
|
硝酸類 |
Q41F-16P、Q41F-25P |
SS304/1Cr18Ni19Ti |
SS304/1Cr18Ni9Ti |
|||
|
醋酸類 |
Q41F-16R、Q41F-25R |
SS316/Cr18Ni12Mo2Ti |
SS316/1Cr18Ni12Mo2Ti |
★廣式法蘭球閥主要尺寸
|
公稱通徑 |
d |
d2 |
L |
D |
D1 |
D2 |
b |
f |
Z-d1 |
H |
W |
|
|
DNmm |
in |
|||||||||||
|
15 |
1/2 |
10 |
15 |
92 |
95 |
65 |
45 |
14 |
2 |
4-14 |
60 |
110 |
|
20 |
3/8″ |
12.6 |
20 |
106 |
75 |
105 |
55 |
14 |
2 |
4-14 |
65 |
110 |
|
25 |
1″ |
17 |
24 |
109 |
85 |
115 |
65 |
16 |
2 |
4-14 |
70 |
110 |
|
32 |
1 1/4″ |
22 |
32 |
126 |
100 |
135 |
78 |
16 |
2 |
4-18 |
85 |
145 |
|
40 |
1 1/2″ |
25 |
38 |
136 |
110 |
145 |
85 |
16 |
3 |
4-18 |
90 |
145 |
|
50 |
2″ |
32 |
46 |
154 |
125 |
160 |
100 |
18 |
3 |
4-18 |
98 |
177 |
|
65 |
2 1/2″ |
44 |
60 |
170 |
145 |
180 |
120 |
20 |
3 |
8-18 |
110 |
190 |
|
80 |
3″ |
50 |
72 |
195 |
160 |
195 |
135 |
22 |
3 |
8-18 |
130 |
240 |
|
100 |
4″ |
65 |
92 |
215 |
180 |
215 |
155 |
22 |
3 |
8-18 |
150 |
260 |
浙江宇澤閥門有限公司專注于球閥,為用戶提供廣式法蘭球閥選型、設計、非標訂制,常規廣式法蘭球閥咨詢,我們可提供廣式法蘭球閥相關標準、圖紙、參數、使用說明及原理介紹,方便用戶根據實際需求做出合理的選型。

關注微官網

加微信為好友
Copyright © 2022 浙江宇澤閥門有限公司 All Rights Reserved. 技術支持:溫州網絡公司 網站地圖 XML 浙ICP備12027596號